糖卜虎中餐廳裝修工程
| 項目名稱 | 糖卜虎中餐廳裝修工程 | 行業屬性 | 酒店/餐飲/會所 |
| 項目地址 | 北京市海淀區銀網中心 | 項目造價 | 23.6萬 |
| 主關鍵詞 |
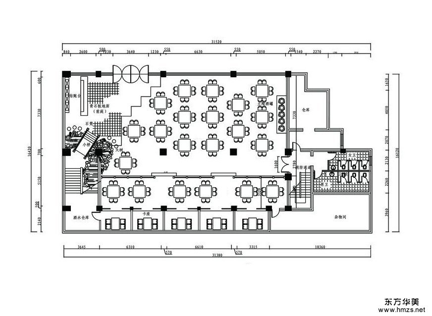
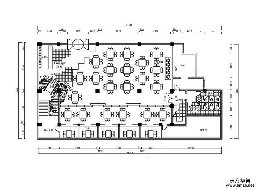
▄原建筑結構分析: 設計師采用自然純樸而不失典雅的設計手法,通過材質和色彩的極致搭配。給顧客營造了雅致舒適的就餐環境,雖然基本采用的是暗色調,卻沒有壓抑的感覺,反而突顯了古樸與沉靜的優雅氣質。運用好似天然的墻面造型和黑色鐵藝展示架,突顯工業風格的裝修風格,營造不一樣的氛圍,給你不一樣的體驗。
▄設計需求: 設計師采用自然淳樸卻又不失典雅的設計手法,通過材質及色彩的搭配使用,給予顧客營造了雅致的就餐環境,雖然基本采用的是暗色調,卻沒有壓抑的感覺,反而給人以古樸、沉靜的舒適的優雅感覺。
▄設計風格定位: 運用好似天然的墻面造型和黑色鐵藝展示架,突顯工業風格的裝修風格,營造不一樣的氛圍,給你不一樣的體驗。


北京鑄誠大廈辦公裝修工程
北京銀河SOHO辦公裝修工程
301醫院裝修工程
